Trata-se de uma das raríssimas oportunidades em que alunos ainda em processo de formação tem a oportunidade de expressar suas idéias livremente e apresentar aos leitores boas ideias que podem colaborar na mudança de cultura, comportamentos e ações frente aos desafios da inclusão da pessoa com deficiência funcional no Brasil. Parabéns aos editores da revista e a todos os orientadores e alunos participantes !
Como sou professora da disciplina, deixarei aqui alguns dos materiais que serviram de pesquisa para o desenvolvimento da proposta. Obrigada alunos!
Conceito
Trata-se de um casal com cerca de 30 e poucos anos, sem filhos e financeiramente estável e que acaba de adquirir um novo imóvel. Ela é artista plástica e ele profissional da área de comunicação e marketing. Os dois gostam de receber amigos e tem por hobby viajar e frequentar exposições e eventos vinculados à área de arte, cinema e design. Um acidente durante o trabalho afetou algumas das habilidades funcionais motoras do marido levando-o a utilizar uma cadeira de rodas. Foi solicitada a readequação do projeto de design para atender à nova realidade, viabilizando o desempenho das mesmas atividades com independência, qualidade, conforto e bem-estar. Serão apresentados aqui três dos ambientes – quarto do casal, banheiro e closet que além de bonitos e de linguagem contemporânea, atendem ao programa de atividades do casal incorporando com elegância algumas tecnologias acessíveis existentes no mercado brasileiro e no exterior.
O closet
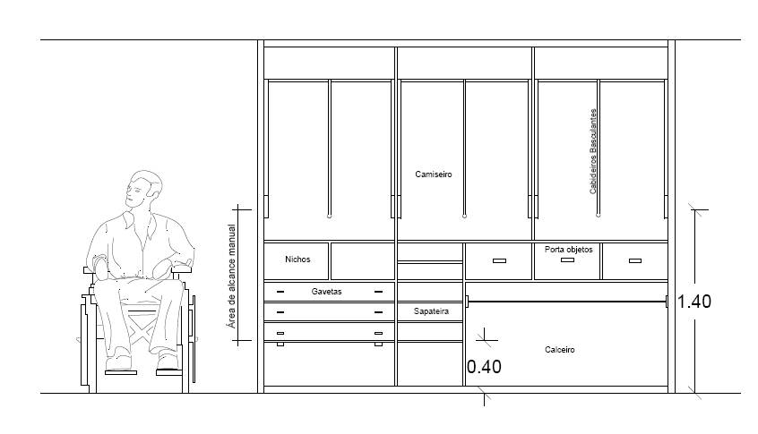
Para atender às necessidades do casal, o closet ficou aberto, sem portas e foi separado em dois setores: o maior deles localizado em duas das paredes foi dedicado à imensa quantidade de roupas, acessórios, objetos e sapatos da senhora. A parede restante foi dedicada ao senhor e nela, para facilitar a visualização e manuseio, foram criadas separações com alturas diferenciadas cujo alcance manual varia entre 0.40 m e 1.40m e onde estão distribuídos prateleiras, gavetas, porta objetos, porta gravatas, porta lenços e cintos além das sapateiras, calceiros e camiseiros. Os cabideiros são basculantes e podem ser instalados em pontos mais altos, pois o varão é puxado para baixo permitindo a descida por inteiro. Em um dos lados, após determinação da forma de aproximação e movimento foi colocado um grande pufe que facilita a troca de roupas e sapatos. Para viabilizar a transferência com mais conforto, o móvel foi suspenso em cerca de 10 cm alinhando-o à altura da cadeira de rodas destacando-se juntamente com o lustre na composição do ambiente. O espelho do teto ao chão facilita a visualização do look e reflete o elegante papel de parede. Iluminação embutida nos armários facilita na visualização interna.

Dormitório
Para a elaboração do layout, o primeiro passo foi determinar a localização dos ambientes solicitados pelo casal juntamente com a circulação e as manobras que seriam realizadas para o deslocamento da cadeira de rodas. Encontrada a posição adequada da cama de casal e do aconchegante ambiente para leitura, conversas e café, foram estudadas as manobras de aproximação e transferência da cadeira para a cama motorizada e da cadeira para a poltrona de massagem robótica esmeralda bege. Mesa de apoio e luminária foram alocadas atendendo aos alcances manuais laterais do cliente. A cama do casal tem reguladores para ajuste de tensão, controle individual de posições além de massageador proporcionando bem estar ao usuário. Para facilitar a transferência, a cama foi elevada em cerca de 0.10 cm do piso chegando à mesma altura da cadeira. Em frente à cama afixada à parede, foi colocada uma tela especial de projeção em vidro adequando-se à decoração e aliando alta-qualidade, tecnologia e design ao ambiente.

Banheiro do casal
Para que o casal possa dividir o banheiro da suíte com conforto, a bancada da pia foi projetada prevendo duas cubas: uma fixa e a outra utilizando um sistema de trilhos que permite o ajuste à altura da cadeira de rodas. O sifão articulado é flexível e seu posicionamento junto à parede permite o acesso frontal com segurança. Para maior comodidade do usuário, os misturadores do lavatório encontram-se em frente à bancada da pia, facilitando a movimentação para uso. Em frente, o espelho que toma toda a parede, está inclinado a 10 graus permitindo a vista do usuário em sua totalidade. No Box foi colocada uma cadeira de banho com braços ajustáveis por meio de um sistema de trilhos. Com hidromassagem, a banheira selecionada proporciona um banho relaxante também para o marido. A aproximação é lateral e a transferência viabilizada pela altura do assento e pela porta deslizante que permite entrada e saída com facilidade. O vaso sanitário suspenso a 0.46 m tem altura igualada à da cadeira de rodas.

Dicas Profissionais
– Lembre-se de que as circulações devem permitir uma passagem livre de obstáculos e, portanto, segura para os deslocamentos entre os ambientes de um mesmo local. Fios, objetos, tapetes e cantos de móveis devem ser evitados. Corredores confortáveis para usuários de cadeiras de rodas têm no mínimo 0.90 cm de largura. Para o vão das portas, o mínimo é de 0.80 cm para passagem.
– Outra sugestão que garante o conforto e o bem estar do usuário de cadeira de rodas refere-se à qualidade dos deslocamentos e das manobras realizadas. Da mesma forma que um carrinho de bebê, bicicleta, automóvel precisa de espaço adequado para poder fazer giros e manobras, o desenho dessas circulações também precisa ser pensado, pois de nada adianta prever o local para a permanência da cadeira estacionada se o usuário não consegue chegar até lá. Assim, giros completos devem ter 1.50 m de diâmetro para viabilizar uma volta inteira no ambiente. Dependendo do caso, as rotações ocupam 1.20 m x 1.50 m para meia volta e 1.20 m por 1.20 m para girar à esquerda ou à direita por exemplo. Uma circulação confortável, dependendo do modelo da cadeira, precisa de uma largura de 0.80 m.
– Tapetes e carpetes podem ser utilizados na decoração desde que sejam “embutidos” no piso evitando um desnível que pode gerar acidentes ou dificuldade na locomoção da cadeira de rodas. O segredo está em criar uma espécie de recorte no piso na altura exata do tapete ou carpete fixando-o no chão. Essa atitude além de evitar tropeços e quedas, também facilita a circulação sobre rodas.
– Procure sempre utilizar pisos antiderrapantes em ambientes como banheiros, lavabos, cozinhas, lavanderias, garagens e áreas externas. Essa atitude evita escorregamentos em ambientes molhados ou em dias de chuva.
– Procure utilizar sofás, cadeiras, poltronas, camas e assentos que tenham pelo menos 0.46 m. Isso significa que móveis com altura semelhante à da cadeira de rodas dão mais conforto, liberdade e bem-estar ao usuário facilitando a transferência. Como os móveis existentes no mercado não chegam a essa altura, sugere-se que a situação seja corrigida com calços ou ainda elevações que devem ajustar o móvel ou os objetos à altura da cadeira de rodas. Embora não seja a situação ideal, ela permite a compra de produtos disponíveis em qualquer loja.
– Situações confortáveis para manuseio de objetos, roupas e acessórios em espaços destinados a armários e closets podem ter, dependendo da profundidade, alturas variáveis entre 0.40 m e 1.40 m do piso. A altura mínima também pode servir para as tomadas de chão. Isso significa que gaveteiros e demais componentes de armários (cozinhas, dormitórios, banheiros, lavanderias e closets) devem estar nestas alturas para que o usuário de cadeira de rodas possa encostar lateralmente e pegar ou guardar os objetos e roupas sem necessitar da ajuda de outras pessoas da casa.
– Pias, mesas e bancadas em geral podem ter alturas entre 0.75 m e 85 m lembrando sempre que o vão entre chão e a parte debaixo da mesa precisa ter altura livre de qualquer obstáculo (como gavetas, sifão entre outros) de 0.73 m para evitar batidas e machucados para o usuário de cadeira de rodas.

Ficha Técnica
Closet
Armários
Em MDF liso branco 25mm, laqueado, feito sob medida para o ambiente e para atender as necessidades específicas do casal.
Tinta
Suvinil Acrilico Antibactéria na cor of-white Casamento – A201
Papel de parede
Bucalo: Linha Alta Gamma Sempre
Iluminação
PLAFON Embutido MF175 Metal Técnica
Lustre
Dominici : Bouquet
Pisos
Carpete Tabacow Art Nylon White
Acessórios
O Cabideiro Basculante foi desenvolvido para ser instalado em armários altos. Com ajuda do varão, basta puxar para baixo e o cabideiro desce por inteiro.
Suporte para cintos
Suporte para Lenços
Suporte para gravatas
Porta Jóias para gaveta
Porta objetos
Móveis
Puff Barcelona Artefacto
Dormitório do Casal
Cama Motorizada Melody
Cortina
Cortinas e cia: Cortina de Voil prega macho – cor branco
Parede
Suvinil: Cor Miragem (paleta dos marrons e neutros)
Rodapé em gesso
Carpetes
Carpete Tabacow Art Nylon White
Nichos de gesso
POLTRONA NEW WOLF
Cadeira de Massagem Robótica Esmeralda – Bege
Parede – Papel de Parede Bucalo
Double screen
Luminária circular, com anel de arremate em alumínio tratado e pintado por processo eletrostático
Beat Light é uma das coleções de luminárias do designer Tom Dixon. É composta por quatro modelos diferentes de pendentes, produzidos artesanalmente por meio de técnicas tradicionais de artesãos indianos. O interior das luminárias é feito de latão envelhecido, com superfície desigual, contrastando com a patina preta no exterior. Uma boa sugestão é montar conjuntos com as luminárias da coleção, organizando-as em diferentes alturas. Assim, se obtêm um ambiente agradável, descontraído e com iluminação inovadora. 4 modelos: wide (h=16 ø=36cm), fat (h=30 ø=24cm), tall (h=36 ø=19cm) e stout (h=50 ø=52cm)
MESA LATERAL BRASILIA
Banheiro
Cadeira de banho
Imperador Light stone
Revestimento de madeira de demolição em relevo
Porcelanato Tokio Warm 45×45 Cx. 1,58m² – Ref: 21125e – Portobello
Bacia Convencional Suspensa Link Branco Gelo P232 – Deca Cód: 880426
Lavatórios – Deca
Luminária circular, com anel de arremate em alumínio tratado e pintado por processo eletrostático nas cores branca, preta, ou padrão Lumini. Refletor em alumínio anodizado. Controle antiofuscamento através do próprio refletor. E 003V – Código para visor em translúcido
Sistema de trilhos para pia – ProfiloSmart
Através de Suportes reguláveis é possível deixar a prateleira na altura desejada.
Banheira Kohler
Ducha Lorenzetti S.A
Se quiser ver mais publicações sobre o assunto, clique aqui.